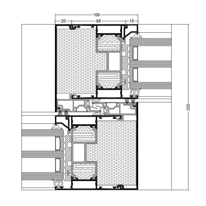
- mimo dużej głębokości zabudowy, system INFERNO charakteryzuje się dużą lekkością wizualną: wymiar widoczny zachodzenia skrzydeł jest niższy niż w dotychczasowych konstrukcjach – wynosi 100 mm (poprzednie rozwiązania: złożenie ramy ze skrzydłem 112 mm)
- skrzydła przystosowane do instalowania pakietów szklanych o grubości nawet 71 mm; ich waga może osiągnąć nawet 600 kg
- w systemie zastosowano innowacyjne rozwiązanie przeniesienia całkowitej wagi wypełnienia bezpośrednio na wózki okuciowe, a z nich na tor jezdny i ramę. Pozwala to na lepszą pracę skrzydła. Jako nowość zasuwnice w skrzydłach posiadają haki lub bolce zamaskowane w skrzydle, natomiast na ramie są listwy zaczepowe w anodzie lub kolorze stolarki
- możliwe jest również stosowanie okuć tradycyjnych z zaczepami ramowymi
- INFERNO zaprojektowano jako system dwutorowy, z możliwością rozbudowy ilości torów
- możliwe jest również szklenie od zewnątrz – przyjazne przy stosowaniu dużych i ciężkich szyb, które łatwiej zainstalować od zewnątrz budynku
- system INFERNO dostosowany do najnowszych wymagań w dziedzinie izolacyjności termicznej, estetyki i bezpieczeństwa
- możliwość zastosowania różnego typu wypełnienia (szyba jedno-, dwukomorowa)
- system umożliwia zastosowanie dużych przeszkleń, co zapewnia doskonałe doświetlenie wnętrz oraz ułatwia ich aranżację, zachowując jednocześnie stabilność, funkcjonalność i lekkość konstrukcji
- maksymalne wymiary konstrukcji:
wysokość skrzydła Hs=3000 mm i szerokość skrzydła Bs=3000 mm /Sobinco/ - konstrukcje podnoszono-przesuwne INFERNO przeznaczone są do stosowania w obiektach budownictwa mieszkaniowego, głównie indywidualnego oraz użyteczności publicznej
- szeroki wybór kolorystyki – paleta RAL (Qualicoat 1518), kolory strukturalne, Aliplast Wood Colour Effect – kolory drewnopodobne, Aliplast Loft View – kolory imitujące kamienne powierzchnie (Qualideco PL-0001), anoda (Qualanod 1808), bikolor
specyfikacja produktu
- materiał
- głębokość ościeżnicy
- głębokość skrzydła
- grubość szklenia
- typ drzwi
dane techniczne
- Izolacyjność termiczna Uf*
- przepuszczalność powietrza
- obciążenie wiatrem
- wodoszczelność
*Izolacyjność termiczna uzależniona jest od kombinacji złożeń profili oraz grubości wypełnienia.
przekroje




