- system ULTRAGLIDE umożliwia konstruowanie dużych, a jednocześnie stabilnych okien i drzwi przesuwnych, o maksymalnej wadze skrzydeł wynoszącej: 250 kg dla opcji przesuwnej, i 400 kg dla opcji podnoszono-przesuwnej
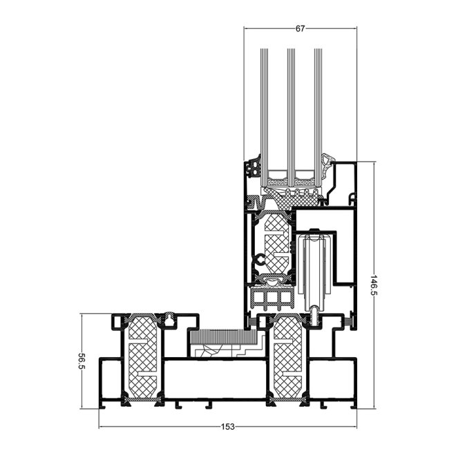
- budowa konstrukcji: ościeżnica: system 3 ,5 i 7 komorowy
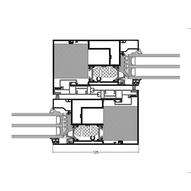
- możliwe kombinacje dwu-, trzy- i czteroelementowe na bazie systemu dwutorowego
- profile dostosowane są do montażu wielu dostępnych na rynku okuć ryglowanych ręcznie i za pomocą automatyki
- możliwość zastosowania różnego typu wypełnienia (szyba jedno-, dwukomorowa)
- system dostosowany do najnowszych wymagań w dziedzinie izolacyjności termicznej: w systemie zastosowano: przekładkę termiczną o szerokościach 22 mm i 28 mm wzbogaconą dodatkiem włókna szklanego, wkłady termiczne oraz wkłady podszybowe poprawiające izolacyjność termiczną przekroju
- dostępne opcje: wersja UG, UG i, UG i+
- system umożliwia konstrukcję dużych przeszkleń, co zapewnia doskonałe doświetlenie wnętrz oraz ułatwia ich aranżację, zachowując jednocześnie stabilność, funkcjonalność i lekkość konstrukcji
- szeroki wybór kolorystyki – paleta RAL (Qualicoat 1518), kolory strukturalne, Aliplast Wood Colour Effect – kolory drewnopodobne, Aliplast Loft View – kolory imitujące kamienne powierzchnie (Qualideco PL-0001), anoda (Qualanod 1808), bikolor
specyfikacja produktu
UG
- materiał
- głębokość ościeżnicy
- głębokość skrzydła
- grubość szklenia
- akustyka
- ciężar skrzydła
- typ drzwi
UG i+
- materiał
- głębokość ościeżnicy
- głębokość skrzydła
- grubość szklenia
- akustyka
- ciężar skrzydła
- typ drzwi
dane techniczne
UG
- izolacyjność termiczna uf*
- Przepuszczalność powietrza
- obciążenie wiatrem
- wodoszczelność
UG i+
- izolacyjność termiczna uf*
- Przepuszczalność powietrza
- obciążenie wiatrem
- wodoszczelność
*Izolacyjność termiczna uzależniona jest od kombinacji złożeń profili oraz grubości wypełnienia.
przekroje

